Luxury Beachfront Living at Playas del Duque, Puerto Banus
Playas del Duque, Puerto Banus
  • €2,990,000

Details

Property ID
AMS-1013
Bedrooms
3
Bathrooms
2
Property Size
198 m²
Garages
2 Parking + Storage
Year Built
1988
Terrace Size
45 m²
Updated on January 21, 2026 at 7:29 pm

Description

Your Private Oasis by the Sea
Welcome to Playas del Duque in Puerto Banús, a prestigious beachfront residential community on the Costa del Sol. This exclusive enclave offers the perfect blend of relaxation and luxury, featuring four swimming pools, a serene spa, a modern fitness center, and a selection of on-site restaurants. With direct beach access and professional concierge services, you’ll experience ultimate comfort and convenience every day.
Everything you need is within walking distance—pharmacies, supermarkets, designer boutiques, and gourmet dining—making Playas del Duque the ideal place to call home in Marbella.


Your Dream Apartment Awaits
Step into a stylishly renovated 3-bedroom, 2-bathroom apartment designed for modern coastal living. The open-plan kitchen, fitted with premium Miele appliances, flows into the bright and spacious living area. Each bedroom features top-quality wooden floors, with independent air conditioning for maximum comfort. The bathrooms include elegant finishes and underfloor heating for a touch of everyday luxury.
From your private balcony, soak in panoramic views of the Mediterranean Sea—an inspiring backdrop to your new lifestyle. Two private parkings are also included for your convenience.


A Tribute to Andalusian Craftsmanship
This residence goes beyond luxury—it’s a true expression of Andalusian architecture and eco-conscious design. By making Playas del Duque your home, you embrace the heritage, artistry, and sustainability that define the Iberian Peninsula.


Discover Puerto Banús & Marbella
Renowned worldwide, Puerto Banús is Marbella’s glamorous marina, where the Mediterranean lifestyle thrives. Just moments away, you’ll find a vibrant mix of fine dining, high-end shopping, luxury yachts, and upscale nightlife. The surrounding Costa del Sol offers golden beaches, championship golf courses, and year-round sunshine—ensuring every day feels like a holiday.

Features

  • 24h Service
  • Air conditioning
  • Alarm
  • Amenities near
  • Balcony
  • Beachside
  • Climate control
  • Close to port
  • Close to schools
  • Close to sea / beach
  • Close to shops
  • Close to town
  • Covered terrace
  • Double glazing
  • Fitted wardrobes
  • Front line beach
  • Garden view
  • Gated community
  • Lift
  • Open plan kitchen
  • Optional furniture
  • Panoramic view
  • Private terrace
  • Recently Renovated / Refurbished
  • Sea view
  • Security entrance
  • Security service 24h
  • Storage room
  • Wooden floors

Floor Plans

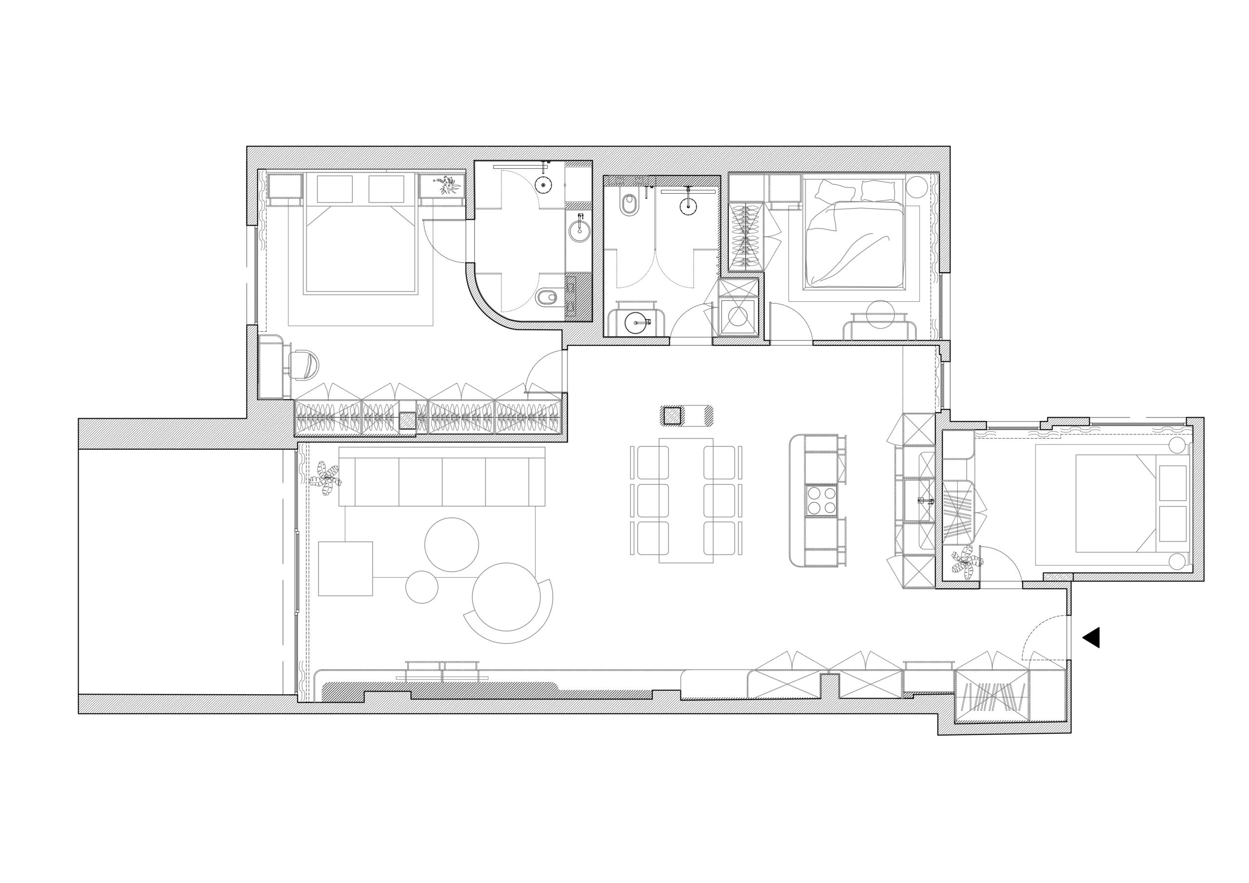
Layout

Description:
This modern floor plan features three bedrooms, including a spacious primary bedroom with en-suite bathroom, a large living room with access to a private balcony, a bright kitchen, and two bathrooms for convenience. The layout offers an open and functional design, perfect for families or entertaining guests.

Contact Information

Karina Paulina Lind
  • Karina Paulina Lind
  • +34 697 463 313 WhatsApp
View Listings

Enquire About This Property

Compare listings

Compare
Karina Paulina Lind
  • Karina Paulina Lind